纬地交通与安全工程CAD系统(HintJT)是我公司结合工程设计实践针对各等级公路及市政道路开发完成的一套专业的交通工程设计软件系统,其主要功能包括:各种类型标志的快速布设;各种类型标志的快速统计(CAD图表和Excel表);快速绘制项目中所用到的标志平面布设图、安装图、结构图、版面设计图;各种标志牌版面的快速设计;各种类型标线的快速布设;标线数量及图表的统计输出等。
8、强大的三维支持能力,可基于施工图数据,自动生成标志、标线及安全设施等三维模型,为RIM和仿真分析提供支撑。
【主要功能和适用范围】提供各种类型的交通标志、标线、交通安全设施、信号灯的布设与详细设计功能;并自动计算输出各种工程量统计成果图表;适用于公路及市政道路各等级项目的交通标志、标线、设施等的设计任务,可显著提高设计效率,免除人为统计的繁复工作,极大的提高了设计效率和质量。
【系列软件集成】与纬地系列软件高度集成;可基于“纬地道路三维集成CAD系统”的项目数据自动提取路线平面、纵断面、横断面的基础设计数据,进行交通标志、标线及安全设施的设计与图表输出。
【标志设计功能】提供多种结构形式的交通标志设计,如单柱式、多柱式、单悬臂式、双悬臂式、门架式、附着式等各种常见的结构形式,自动计算标志结构的工程数量;在进行标志牌添加时,提供批量快速添加同类型标志牌的功能,避免了添加同类型标志牌的反复操作过程;实现平面设计图与数据互相关联,使得数据与图形联动,使市政道路标志设计简单快捷;提供标志自动布设功能,可对桥梁、隧道、弯路、陡坡、村庄、学校、铁路道口等特征段进行标志自动布设,使标志的自动设计内容更加丰富。
【内置标志版面】内置GB5768-2009《中华人民共和国国家标准_道路交通标志和标线》中的各种标志牌标准版面图,方便用户直接选用进行设计;标志牌版面按照九种类型划分,包括警告标志、禁令标志、指令标志、指路标志、高速标志、旅游标志、辅助标志、告示标志、地方标志等版面类型,且支持各种特殊类型标志的自定义添加。
【存为标志模板功能】提供标志模板添加功能,采用智能模板方式进行各种类型及样式的标志牌版面自定义添加和编辑修改,并可将定制好的标志牌添加到标志模板库中,再通过添加标志的命令直接调用;系统还提供了“模板方式”进行标志的添加:可将已设计完成的标志存为模板,包括支撑形式的详细参数设置也同时保存,以供下次直接调用该模板进行类似标志的快速设计;并提供了便捷的“参数复制、粘贴”功能,可快速在不同标志之间交换结构参数,极大地提高了设计效率。
【版面自动计算功能】对于指路标志、辅助标志及告示标志,版面内容采用可视化设计方法,根据用户输入的版面参数自动刷新显示版面内容,并自动重新计算版面尺寸,同时标志版面工程数量及相关连接件工程数量也会实时刷新。
【标志结构验算功能】提供各种结构形式(单柱式、多柱式、单悬臂、双悬臂、门架式)的结构稳定性计算功能,并自动输出计算书;对于不满足结构稳定性验算的部位,自动弹出提示对话框,并在计算书中以红色字体警示出来。
【标线设计功能】提供各种类型标线的快捷设计功能,基于路线数据生成对应车道数及车道宽度信息,进行一般路基段标线自动设计;根据特征数据(构造物、弯道、陡坡等)自动布设主线标线功能,使主线标线的自动布设更符合实际需求;对于任意线段实体,支持快速转换为标线(可转换为单实线、双实线、虚线、双虚线、虚实线)的功能。
【平交口标线快速布设功能】提供平交口标线快速布设功能,通过拾取左右侧车道线自动套用对应标线模板生成导向箭头、车道分界线等,使规则平交口的布设更加方便快捷。
【安全设施自动布设功能】提供交通安全设施自动布设的功能。根据设计参数和规范要求自动布设护栏、隔离栅、防眩设施、轮廓标等安全设施,用户可自定义各项安全设施的自动设计规则。
【信号设施布设功能】提供各种信号设施的智能布设功能,如:信号灯、电子警察、信号线缆、检查井、感应线圈等,并可根据需求对其进行扩充和编辑修改;自动统计输出各种信号设施的工程量;可进行信号设备编组及管线检查。
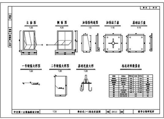
【绘图出表功能】可快速生成标志安装图、结构图、基础设计图、连接大样图、标志平面布设图、交通标志一览表、交通标志汇总工程数量表;自动输出标线平面设计图、主线标线大样图、符号标线大样图、标线汇总工程数量表;自动绘制安全设施平面图、通用图及材料表、安全设施一览表。
【BIM设计平台功能】提供独立的工程BIM设计平台(BIM设计端),支持用户以任意三维视角对交通标志、标线、安全设施的布设位置、布设方式进行浏览查看,可实现对各类设施设计、布置的合理性的分析与评价;该功能实现交通工程全三维BIM正向设计,可在BIM端进行标志位置的修改,设计参数实时更新;可直接在BIM端调出标志、标线、安全设施在CAD端的参数设置界面,随着参数的调整,系统自动实时刷新BIM模型。
【BIM模型创建及属性关联】提供交通标志、标线、安全设施的自动建模功能,自动构建所有交安设施的BIM三维实体模型,并自动附加、关联模型部件属性信息,为工程BIM交付奠定基础。