挡墙模块与支挡构造物处理模块的区别与联系
发布日期:2016-10-20    点击量:15410    信息来源: 信息员

      公路设计中,在陡坡路段、岩石风化的路堑边坡路段、需要降低路基边坡高度以减少大量填方、挖方的路段、边坡不稳定的不良地质路段以及沿河水流冲刷等路段,需要修建挡土墙来防止土体塌滑。纬地挡土墙设计系统(以下简称挡墙模块)和纬地道路设计系统中的支挡构造物处理模块(以下简称支挡构造物模块)均可添加挡土墙。以下对挡墙模块和支挡构造物模块的区别与联系进行说明。

      一、挡墙模块与支挡构造物模块的区别

      1.挡墙模块与支挡构造物模块的适用范围

      支挡构造物模块主要用于项目设计前期,以路基横断面设计时自动插入绘制挡土墙图形并自动考虑计算挡土墙对路基土石方数量的影响为主。

      挡墙模块可用于各阶段挡墙设计,在满足坡脚收缩土方控制的同时,可对挡墙进行详细设计并绘图,并且需要输出完整挡墙设计成果的设计阶段(该模块作为单独的纬地挡墙CAD系统,同时也集成于纬地路基CAD系统中)。

      2.挡墙模块与支挡构造物模块的标准库

      挡墙模块的标准图库(HintBZDQ.mdb,默认路径为纬地挡墙软件安装目录下图库文件中)与支挡构造物模块的标准图库(DQDB.HDQ,默认路径为纬地道路软件安装目录下),用户可以不断扩增充实,用户新增的标准挡土墙数据均会自动存储到该库中。

      (1)支挡构造物标准库

      支挡构造物模块的标准库比较简单,以左侧挡墙断面为例:录入时手工绘制出挡墙大致的断面形式,然后在挡土墙属性编辑窗口,逐个修改输入该标准挡墙的“挡墙名称”、“墙顶填土高度”、“墙身高度”、“墙底埋深”、挡墙各边尺寸等信息,设置完成后右键左侧新增列表中的标准挡墙名称即可设置近路面点、填土线等信息,如下图1:

图1

       支挡构造物模块右侧标准挡墙录入与左侧相同,可直接将左侧标准挡墙中的挡墙拖放到右侧标准挡墙中,然后右键该标准挡墙名称,选择“垂直镜像挡墙”命令,系统即可自动将其镜像为右侧标准挡墙。

      (2)挡墙模块标准库

      挡墙模块的标准库数据更为全面详实,挡墙模块创建标准挡墙时均以左侧挡墙断面为准,在路幅横断面右侧布设挡墙过程中,系统自动将左侧标准挡墙镜像为右侧标准挡墙进行布设。

      挡墙模块中标准库的录入首先需建立标准挡墙类型,在建立标准挡墙类型过程中可复制已有挡墙库中相似标准挡墙类型,然后依次设置每条边的属性及对应ID(请注意在此过程中必须设置两条自动计算的边,后续录入挡墙尺寸过程中通过设置的自动计算边进行挡墙断面的闭合计算),如下图2;再设置参数名称及属性ID,最后设置近路面点和填土线。

图2

       标准挡墙类型新建完成后即可添加标准挡墙数据,首先设置地基承载力、内摩擦角等参数;然后输入挡墙每条边的长度、坡度等数据,输入完成后点计算进行挡墙断面的闭合计算,如下图3;再输入参数值即可完成该墙高的标准挡墙断面尺寸录入,此过程中可进行挡墙稳定性验算,如下图4。

图3

图4

      标准挡墙断面数据录入完成后,如果需对相关边尺寸或参数值进行修改,可使用编辑标准挡墙命令对该标准挡墙数据进行编辑或修改。

      3.挡墙模块与支挡构造物模块的挡墙布设与成果

      (1)支挡构造物模块挡墙布设与成果

      支挡构造物模块中,以左侧为例,只需将标准挡墙用鼠标拖放至挡墙文件下的左侧挡墙,然后设置该墙段的起终点桩号等信息,右键该墙名称可设置自动变换墙高、自动变换填土高度、设置墙外排水沟等,如下图5。

图5

       保存挡墙文件后,系统即可在横断面图中准确绘制支挡构造物的断面图,并准确扣除构造物部分的土方面积,如下图6。

图6

        (2)挡墙模块挡墙布设与成果

       挡墙模块可以直接从路线项目中自动提取所有相关数据,绘出挡土墙纵向布设草图,用户选择需要添加的标准挡墙类型后,通过拖拉鼠标即可实现挡墙的纵向立面实时布设,并可同步实时在下方预览窗口查看挡墙横断面图的布设合理性。墙段的布设图可以通过夹点编辑进行调整优化,起终点墙高、墙底纵坡、挡墙基坑开挖等参数均可在CAD特性窗口中进行修改,如下图7:

图7

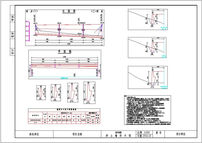
      墙段布设完成后,系统即可自动输出完整的挡墙平、立面设计图,挡墙横断面图和工程数量表等,如下图8。挡墙模块同时可将布设好的挡墙设计数据保存到纬地路线项目中,在纬地道路软件中即可自动完成带有挡墙断面的路基横断面设计绘图。

图8

      二、挡墙模块与支挡构造物模块的联系

      挡墙模块生成的挡墙文件(*.DQD)与支挡构造物模块生成的挡墙文件(*.dq)是互不兼容的文件,但在纬地道路软件中,这两种格式的挡墙文件均可同时应用并体现在路基横断面图上,并考虑挡墙对路基断面土石方的影响。例如对于护脚墙等结构简单的构造物一般并不需要详细的平立面设计,多数情况也不需要输出详细的平立面图,因此,对于某些设计项目,用户也可以同时使用支挡构造物模块和挡墙模块进行设计,纬地系统也可以同时综合考虑二者的设计成果自动输出路基横断面图(注:该功能仅内置于v7.0及以后软件版本中)。

上一篇:解析隧道段运行速度预测模型及方法          下一篇:纬地平面移线功能在“桩号反向”项目中的应用
中国工程勘察设计三维数字化、协同化CAD解决方案供应商